About
Homes
Custom Homes
Home Plans
Portfolio
Reviews
Contact
About
Homes
Custom Homes
Home Plans
Portfolio
Reviews
Contact
Toggle navigation
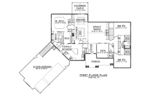
Plan 3122 First Floor
Plan 3122 First Floor