About
Homes
Custom Homes
Home Plans
Portfolio
Reviews
Contact
About
Homes
Custom Homes
Home Plans
Portfolio
Reviews
Contact
Toggle navigation
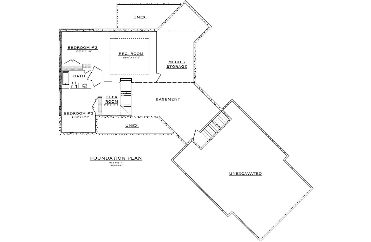
Plan 2568 Lower Level
Plan 2568 Lower Level