About
Homes
Custom Homes
Home Plans
Portfolio
Reviews
Contact
About
Homes
Custom Homes
Home Plans
Portfolio
Reviews
Contact
Toggle navigation
Plan 2568 First Floor
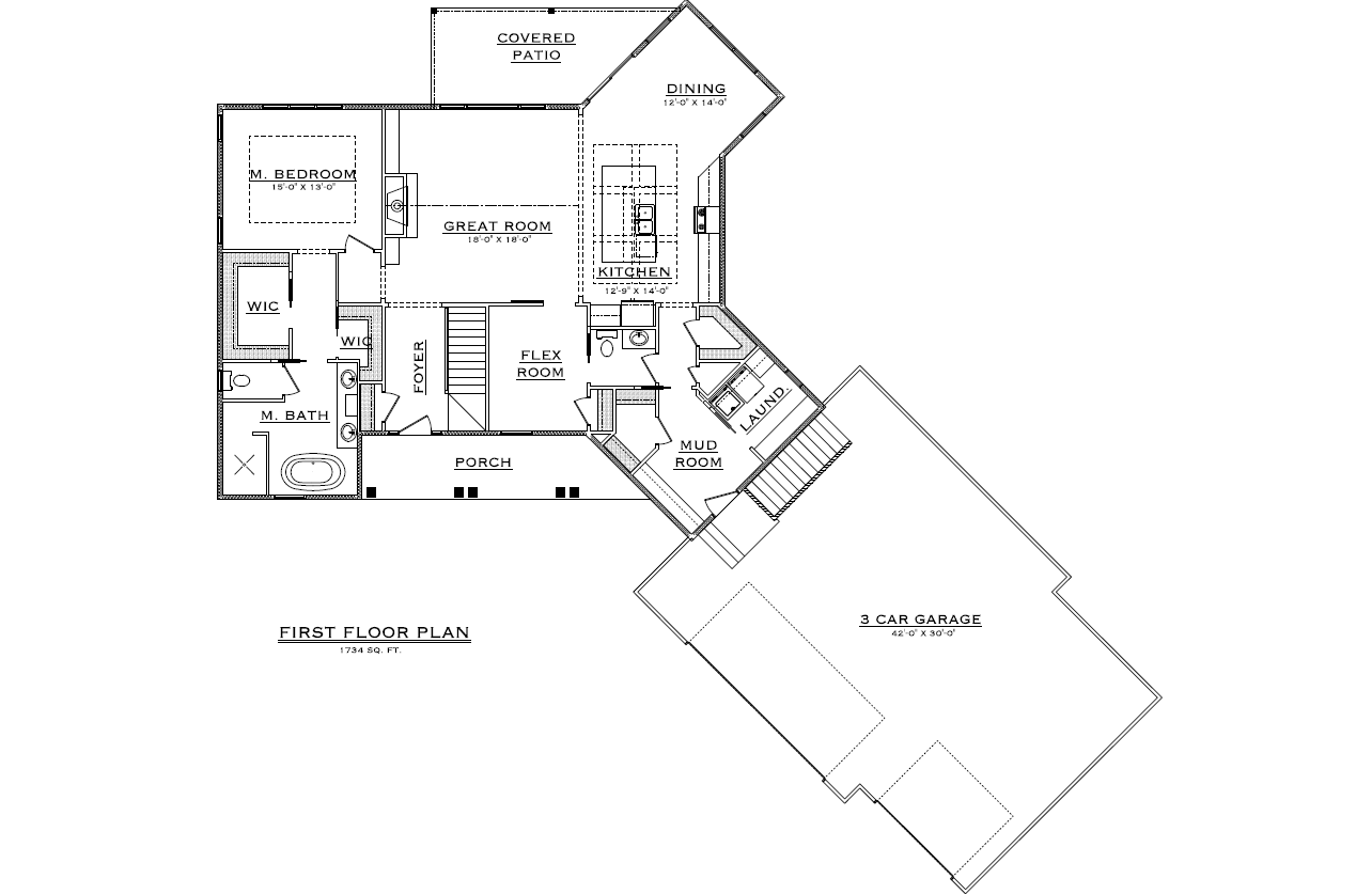
Plan 2568 First Floor